VAUJANY - APPARTEMENT DE STANDING PERSONNALISABLE
505 000
EUR
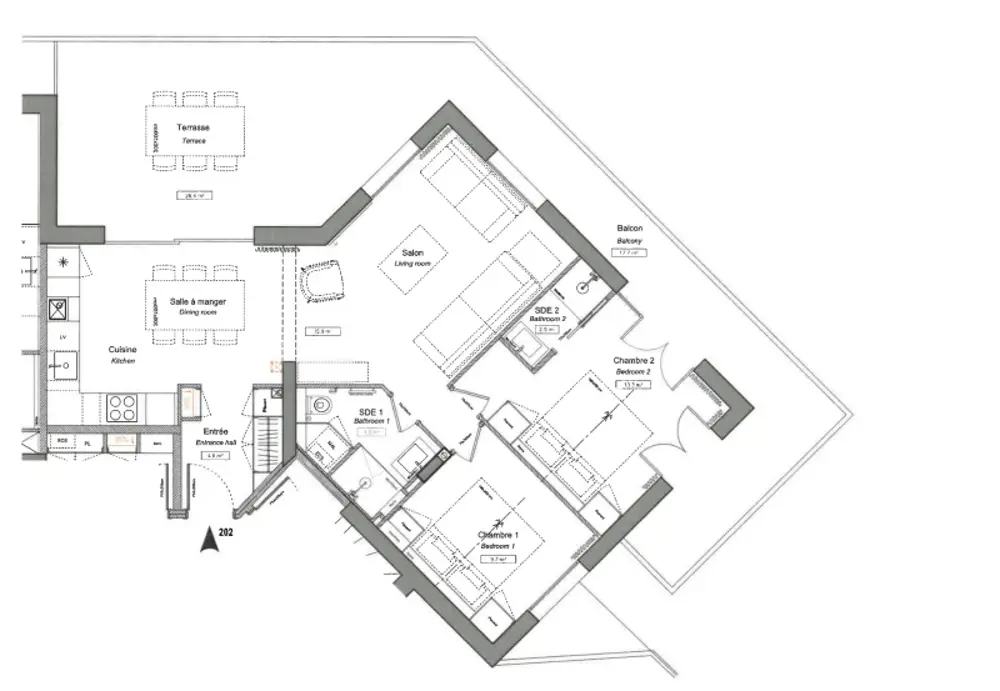
Le chalet SASKIA situé dans la belle station village de Vaujany, se métamorphose pour donner naissance à 5 appartements exceptionnels dans un cadre intimiste et calme, dont l’appartement 202 d’une surface de 70 m² de type T3 qui sera vous séduire par sa luminosité, sa vue, sa terrasse et son rez de jardin face à la cascade et la mythique piste noire de la Fare. L’appartement dispose également d’une place de stationnement extérieur et un box. Livré en plateau brut, à votre guise de créer sur mesure votre intérieur. Offrez-vous un espace à aménager selon vos envies, en toute sérénité !
Vous pouvez être accompagné à chaque étape de votre projet. Des plans personnalisables aux devis estimatifs, tout est pensé pour vous faciliter la vie. Mode de chauffage, choix des matériaux, finitions… Chaque détail est modulable selon vos goûts et votre budget. Nous construisons ensemble un intérieur qui vous ressemble. Il ne reste plus que deux logements disponibles.
REF: 523 - 202
Vous pouvez être accompagné à chaque étape de votre projet. Des plans personnalisables aux devis estimatifs, tout est pensé pour vous faciliter la vie. Mode de chauffage, choix des matériaux, finitions… Chaque détail est modulable selon vos goûts et votre budget. Nous construisons ensemble un intérieur qui vous ressemble. Il ne reste plus que deux logements disponibles.
REF: 523 - 202
Synthèse
Type de bien : APPARTEMENT T3
Surface : 70 M²
Consommation énergie : D - 198
Emission Gaz : D - 32
Prix : 505.000 €
Référence : 522 - 202
Lieu : VAUJANY
Surface : 70 M²
Consommation énergie : D - 198
Emission Gaz : D - 32
Prix : 505.000 €
Référence : 522 - 202
Lieu : VAUJANY
Equipement
A personnaliser entièrement
Les Plus
Terrasse de 44 m²
A 120 m² des remontées
Vue execeptionnelle
A 120 m² des remontées
Vue execeptionnelle
