LES 2 ALPES - PROGRAMME NEUF - APPARTEMENT T2
354 000
EUR
LES DEUX ALPES - Idéalement située au pied des pistes et dans un quartier calme, la future résidence L’EMPARIS sera ravir les amoureux de la montagne, des sports de glisses et autre/ Le programme est composé de 26 logements du T1 au T4 avec 5 duplex. Chaque appartement dispose d’un casier à ski.
La résidence est composée de 4 niveaux avec ascenseur. Livraison 1er trimestre 2027.
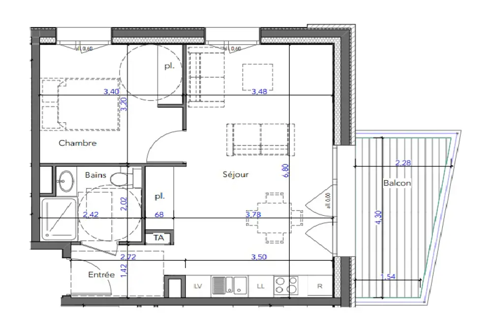
Cet appartement a une surface de 45,06 m² avec un balcon de 8,22 m² exposé est.
REF : 475-002
La résidence est composée de 4 niveaux avec ascenseur. Livraison 1er trimestre 2027.
Cet appartement a une surface de 45,06 m² avec un balcon de 8,22 m² exposé est.
REF : 475-002
Synthèse
Type de bien : T2
Surface : 45,06 m² loi carrez
Prix : 354.000 €
Honoraires à la charge du vendeur
Référence : 475-002
Lieu : 38860 Les Deux Alpes
Surface : 45,06 m² loi carrez
Prix : 354.000 €
Honoraires à la charge du vendeur
Référence : 475-002
Lieu : 38860 Les Deux Alpes
Equipement
Chaudière à gaz collective pour le chauffage et la production d'eau chaude
Façades avec parement pierre et bardage bois
Façades avec parement pierre et bardage bois
Les Plus
Au pied des pistes
Calme
1 cave
Place de parking
Calme
1 cave
Place de parking
